
WSSP-561焊接抽芯式徑向一體化雙金屬溫度計簡介
雙金屬溫帶熱電偶、熱電阻一體化溫度計和雙金屬帶熱電偶、熱電阻一體化溫度變送器是現場顯示和遠傳電信號的溫度傳感器,它可以就地指示溫度,也可以同時把信號遠傳至控制儀表,以實現遠程調節和控制,上海自動化儀表三廠生產的WSSP-561焊接抽芯式徑向一體化雙金屬溫度計,作為新一代的溫度傳感器,它可以直接測量工業生產過程中-60℃~500℃范圍內的液體、氣體和蒸汽等介質的溫度,被廣泛用于冶金、石化、電力、輕紡、食品國防等工業部門。
WSSP-561焊接抽芯式徑向一體化雙金屬溫度計主要技術參數
◆測量范圍:-60~500℃
◆精度等級: 1.5級(可以做成1.0級)
◆與熱電阻配套:分度號P100,精度A級或B級(接線盒內可加配溫度變送器)
◆與熱電偶配套:分度號E或分度號K,精度I級或II級(接線盒內可加配溫度變送器)
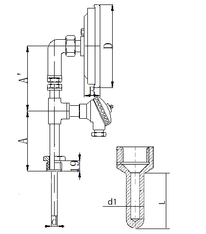
◆標度盤公稱直徑:150mm
◆插入深度:L=70~2100mm
◆套管直徑:d=Φ10-Φ22或根據需要
◆套管材質:不銹鋼304、321、316等
◆安裝方式:徑向焊接式套管
◆響應時間:≤60S
◆使用環境溫度:室內-25~55℃;室外-25~80℃
◆相對濕度:5~95%
◆防護等級:IP65
◆執行標準 JB/T8803-1998 GB3836-83
一體化雙金屬溫度計工作原理
雙金屬溫度計是利用兩種不同金屬的膨脹系數不同的原理而工作的。將雙金屬片繞制成螺旋管狀的一端被固定,另一自由端與指針連接,隨著溫度的變化而轉動,并帶動指針在表盤上顯示對應的溫度。
一體化雙金屬溫度計使用選型

選型舉例:
WSSP-501 表示表盤直徑Φ150mm的可動外螺紋連接,軸向型一體化雙金屬溫度計
WSSP-511表示表盤直徑Φ150mm的可動外螺紋連接,徑向型一體化雙金屬溫度計
WSSP-561表示表盤直徑Φ150mm的可動外螺紋連接,徑向抽芯式一體化雙金屬溫度計
WSSP-571表示表盤直徑Φ150mm的可動外螺紋連接,萬向抽芯式一體化雙金屬溫度計
WSSP-581示表盤直徑Φ150mm的可動外螺紋連接,萬向型一體化雙金屬溫度計
一體化雙金屬溫度計安裝圖片
◆WSSP-561焊接抽芯式徑向一體化雙金屬溫度計
D=163mm A=100mm B=24mm
d=6-10mm d1=10-20mm
內螺紋M27*2焊接式套管



客服1